现在农村的生活条件越来越好,大家的对房子的要求也越来越高,房子的更新迭代很快。十年前建的房子,就已经跟不上时代了。以前建的四层或者更高的别墅,高层很多都用不上,而且花的钱也多。推荐这款湖南柏竣建筑工程:农村三层现代别墅设计图,设计更加现代化,三层的设计也更加经济,也绝对实用。
别墅参数
[层数]:三层别墅 [结构形式]:框架结构 [建筑风格]:现代风格
[开间]:12.00m [占地面积]:134.56㎡ [建筑面积]:273.34㎡
[进深]:13.30m [主体造价]:22万~25万(仅供参考)
户型赏析
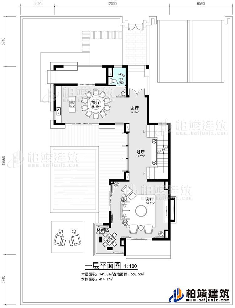
BZ321一层平面图
客厅、餐厅、厨房、活动室,门厅、卫生间
一层前方设计游泳池,也可按需设计,房屋设计新颖,34.02㎡大客厅,毗邻休闲区。大餐厅设计,一家人还是过节待客都能坐下来,吃一顿热气腾腾的家乡饭。
BZ321二层平面图
卧室X2、主卧、主卫
二层超大40.95㎡主卧,符合现代居住大空间需求。客间和套房自带内卫,居住更加方便,避免走夜路。设衣帽间,生活幸福感更高。
BZ321三层平面图
多功能厅、露台
三层设两个大型露台,可按自己需求改装车阳光房也是不错的,可做露台晾晒衣物、农作物。